(877) 530-7743
Products & Rentals
Arjo Product Resource Guide
Patient Transfer Solutions
Portable Ceiling Lifts
Portable Track Systems
Fixed-Track Ceiling Lifts
Fixed-Track Systems
Floor Lifts & Standing Lifts
Slings
Standing Lifts
Barrier Free Showers & Walk-In Tubs
Barrier Free & Walk in Shower Systems
ADL Tubs—Assisted Daily Living
Walk-in Tubs
Custom Shower Wall Panels
Portable Hygiene Options
Accessories
Seachrome Products
Lifts & Ramps
Porch Lifts
Ramps
Transition Mats
Auto Lifts
Automatic Door Openers
Stairway Lifts & Elevators
Rentals
Services
Resources
Contact Us
About
Floor to Floor Lifts
Hide Details
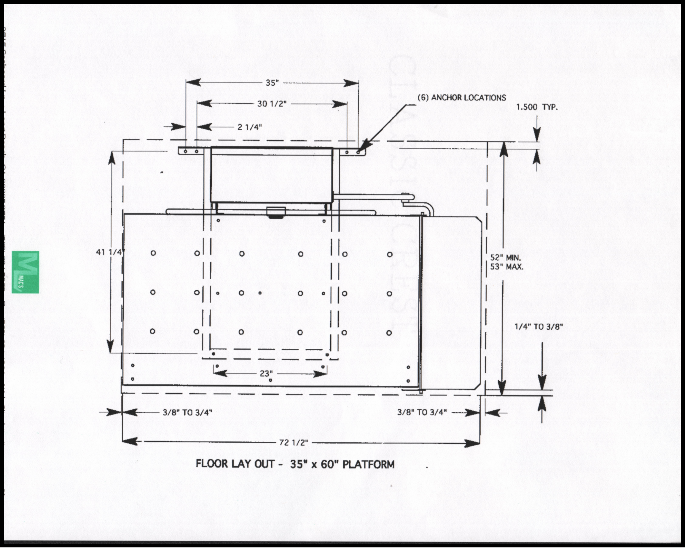
Floor to Floor drawings
Mac's Floor to Floor Lift from 96" up to 144"
Hide Details
Floor to Floor Completed Jobs
Hide Details
Floor to Floor as built drawings
X
Contact Us
Send Message